Navigation überspringen
  • Einfamilienhäuser
  • Individuelle Bauten
  • Über uns
  • Team
  • Kontakt
  • Jobs
  • Partner
Navigation überspringen
  • Home
  • Dinhard
Pewihaus

Seit über 40 Jahren

Navigation überspringen
  • Home
  • Dinhard
Navigation überspringen
  • Einfamilienhäuser
  • Individuelle Bauten
  • Über uns
  • Team
  • Kontakt
  • Jobs
  • Partner
  • Idee 1

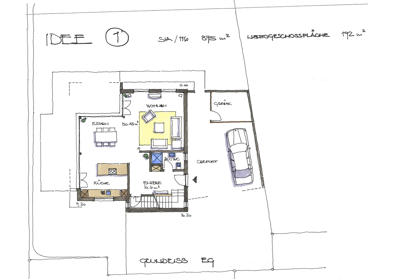
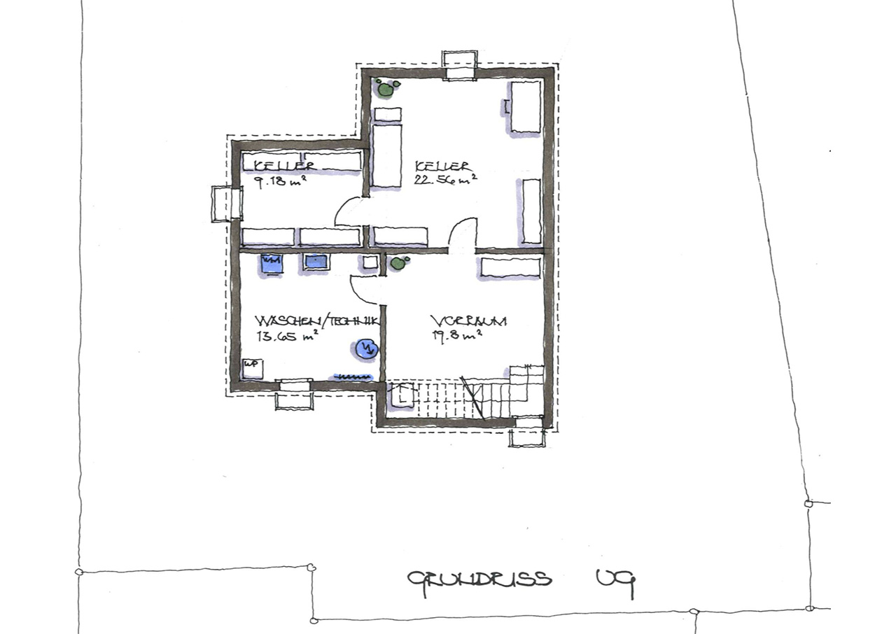
Idee 1